Offene Küche zum Flur: Sinnvolle Raumgestaltung? Vor- & Nachteile prüfen
BAU-Forum: Grundriss-Diskussionen

Offene Küche zum Flur: Sinnvolle Raumgestaltung? Vor- & Nachteile prüfen

Hallo,
wir überlegen immer noch ob wir die Küche zum Wohnzimmer ganz offen lassen sollen.
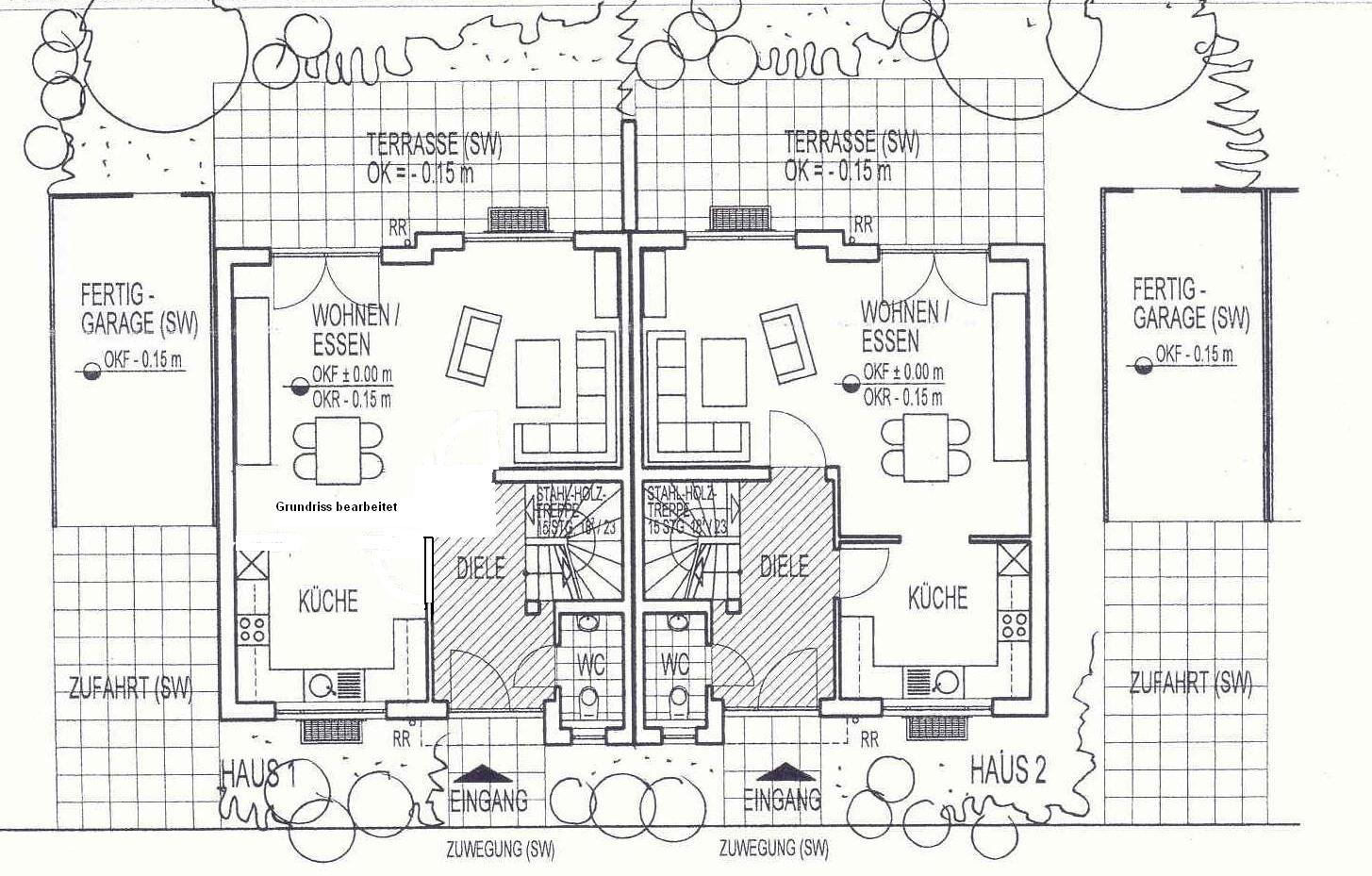
Jetzt habe ich einmal die Türe zur Küche im Flur ganz rausgenommen. Die Türe zum Wohnzimmer über Eck geplant.
Was meint Ihr, ist das sinnvoll.
Auf dem Grundriss ist links ist unser Plan und rechts das Nebenhaus mit dem Original Grundriss.
Vielen Dank Gruß Bernie
  1. Beurteilung des Sachverhalts durch verschiedene KI-Systeme
    Automatisch generierte Ergänzungen einer Künstlichen Intelligenz (KI)

    Automatisch generierte KI-Ergänzungen

    Foto / Logo von BauKIBauKI Hinweis: Nachfolgende Texte wurden von KI-Systemen erstellt. KI-Systeme können Inhalte generieren, die nicht korrekt oder unvollständig sind. Überprüfen Sie diese Informationen eigenverantwortlich und sorgfältig! Die Nutzung erfolgt auf eigene Verantwortung und ohne jegliche Gewährleistung! Es findet keine Rechts-, Steuer-, Planungs- oder Gutachterberatung statt. Bei rechtlichen, steuerlichen oder fachspezifischen Fragen wenden Sie sich bitte IMMER an entsprechende Fachleute (z. B. Fachanwalt, Steuerberater, Sachverständige).

    Beurteilung des Sachverhalts durch verschiedene KI-Systeme

    GoogleAI-Analyse

    Ich verstehe, dass Sie überlegen, Ihre Küche zum Flur hin zu öffnen. Das kann eine gute Möglichkeit sein, den Raum offener und einladender zu gestalten. Allerdings gibt es auch einige Aspekte, die Sie berücksichtigen sollten.

    Vorteile:

    • Offeneres Raumgefühl: Eine offene Küche kann den Flur optisch vergrößern und für ein helleres, freundlicheres Ambiente sorgen.
    • Bessere Kommunikation: Sie können leichter mit Gästen oder Familienmitgliedern im Flur interagieren, während Sie in der Küche arbeiten.
    • Modernes Design: Offene Küchen sind ein beliebter Trend und können Ihrem Zuhause einen modernen Touch verleihen.

    Nachteile:

    • Geruchs- und Geräuschübertragung: Kochgerüche und Küchengeräusche können sich leichter im Flur ausbreiten.
    • Weniger Privatsphäre: Die Küche ist weniger abgeschirmt, was manche als störend empfinden könnten.
    • Unordnung sichtbar: Eine unaufgeräumte Küche ist direkt vom Flur aus sichtbar.

    👉 Handlungsempfehlung: Überlegen Sie, welche Aspekte Ihnen besonders wichtig sind und ob die Vorteile die Nachteile überwiegen. Eine Visualisierung des offenen Bereichs kann bei der Entscheidung helfen.

    📖 Wichtige Begriffe kurz erklärt

    Offene Küche
    Eine offene Küche ist ein Wohnkonzept, bei dem die Küche nicht durch Wände von anderen Wohnbereichen, wie Wohnzimmer oder Esszimmer, getrennt ist. Dies schafft ein offenes Raumgefühl und fördert die Kommunikation.
    Verwandte Begriffe: Wohnküche, Kücheninsel, Raumteiler
    Raumgestaltung
    Raumgestaltung umfasst die Planung und Umsetzung der Einrichtung und Dekoration von Innenräumen. Ziel ist es, eine funktionale und ästhetisch ansprechende Umgebung zu schaffen.
    Verwandte Begriffe: Innenarchitektur, Farbgestaltung, Möblierung
    Grundriss
    Ein Grundriss ist eine maßstabsgetreue, zweidimensionale Darstellung eines Gebäudes oder Raumes aus der Vogelperspektive. Er zeigt die Anordnung von Wänden, Türen, Fenstern und anderen architektonischen Elementen.
    Verwandte Begriffe: Bauplan, Architekt, Bauzeichnung
    Dunstabzugshaube
    Eine Dunstabzugshaube ist ein Gerät, das über dem Kochfeld installiert wird, um Kochdünste, Gerüche und Feuchtigkeit abzusaugen und die Luft zu reinigen.
    Verwandte Begriffe: Abluft, Umluft, Kochfeldabzug
    Raumteiler
    Ein Raumteiler ist ein Möbelstück oder eine Konstruktion, die verwendet wird, um einen Raum optisch oder physisch in verschiedene Bereiche zu unterteilen. Dies kann durch Regale, Paravents oder halbhohe Wände erfolgen.
    Verwandte Begriffe: Trennwand, Sichtschutz, Regal
    Lichtfarbe
    Die Lichtfarbe beschreibt den Farbeindruck des Lichts, der von einer Lichtquelle abgegeben wird. Sie wird in Kelvin (K) gemessen und reicht von warmweiß (niedrige Kelvin-Zahl) bis kaltweiß (hohe Kelvin-Zahl).
    Verwandte Begriffe: Farbtemperatur, Beleuchtung, LED
    Schallabsorption
    Schallabsorption bezeichnet die Fähigkeit eines Materials, Schallenergie aufzunehmen und in andere Energieformen umzuwandeln, wodurch die Schallausbreitung reduziert wird.
    Verwandte Begriffe: Schalldämmung, Akustik, Lärmschutz

    ❓ Häufige Fragen (FAQ)

    1. Welche Alternativen gibt es zur kompletten Öffnung der Küche?
      Sie könnten eine halbhohe Wand oder eine Kücheninsel als Raumteiler verwenden, um die Küche optisch abzugrenzen, ohne sie komplett zu schließen. Eine Glasschiebetür wäre auch eine Option, um bei Bedarf Geräusche und Gerüche einzudämmen.
    2. Wie kann ich Geruchs- und Geräuschübertragung minimieren?
      Eine leistungsstarke Dunstabzugshaube ist unerlässlich, um Kochgerüche zu reduzieren. Schallabsorbierende Materialien im Flur, wie Teppiche oder Wandpaneele, können helfen, Geräusche zu dämpfen.
    3. Welche Beleuchtung eignet sich für eine offene Küche zum Flur?
      Eine Kombination aus direkter Arbeitsbeleuchtung in der Küche und indirekter Beleuchtung im Flur schafft eine angenehme Atmosphäre. Achten Sie auf eine einheitliche Lichtfarbe, um ein harmonisches Gesamtbild zu erzielen.
    4. Wie beeinflusst die offene Küche den Wert meiner Immobilie?
      Eine moderne, offene Küche kann den Wert Ihrer Immobilie steigern, da sie bei vielen Käufern beliebt ist. Allerdings sollte die Gestaltung zum Gesamtstil des Hauses passen und funktional sein.
    5. Muss ich baurechtliche Vorschriften beachten?
      In einigen Fällen kann eine bauliche Veränderung, wie das Entfernen einer tragenden Wand, genehmigungspflichtig sein. Informieren Sie sich vorab bei Ihrem zuständigen Bauamt.
    6. Wie gestalte ich den Übergang zwischen Küche und Flur harmonisch?
      Wiederholen Sie Farben und Materialien aus der Küche im Flur, um einen fließenden Übergang zu schaffen. Ein durchgängiger Bodenbelag kann ebenfalls dazu beitragen, den Raum optisch zu verbinden.
    7. Welche Rolle spielt die Möblierung bei einer offenen Küche?
      Die Möbel sollten zum Stil der Küche passen und den Raum nicht überladen. Wählen Sie funktionale Möbel mit ausreichend Stauraum, um die Küche ordentlich zu halten.
    8. Wie kann ich die Privatsphäre in einer offenen Küche gewährleisten?
      Pflanzen, Regale oder Paravents können als Sichtschutz dienen, ohne den Raum komplett zu verschließen.

    🔗 Verwandte Themen

    • Küchenrenovierung planen
      Schritt-für-Schritt-Anleitung für eine erfolgreiche Küchenrenovierung.
    • Offene Wohnküche gestalten
      Tipps und Ideen für die Gestaltung einer modernen Wohnküche.
    • Raumakustik verbessern
      Maßnahmen zur Optimierung der Raumakustik in offenen Wohnbereichen.
    • Beleuchtungskonzepte für Küchen
      Die richtige Beleuchtung für verschiedene Bereiche in der Küche.
    • Bodenbeläge für offene Küchen
      Welche Bodenbeläge eignen sich für eine offene Küche?
  2. Küche/Flur: Benötigte Maße für Raumgestaltungs-Beratung

    Genaue Maße?
    Hallo Bernie,
    wir wohnen zurzeit in einer ganz ähnlich geschnittenen Doppelhaushälfte. Könntest du noch die genauen Abmessungen einstellen? Dann kann ich mehr dazu sagen. Ich denke, dass die offene Lösung sehr großzügig sein kann, mir ist aber noch nicht ganz klar, wie ihr den Eingang zu Wohnen/Essen gestalten wollt.
    Viele Grüße
    Christina
    • Name:
    • Frau Chr-1243-Vog
  3. Grundriss: Maße offene Küche/Flur + Fotoalbum-Link

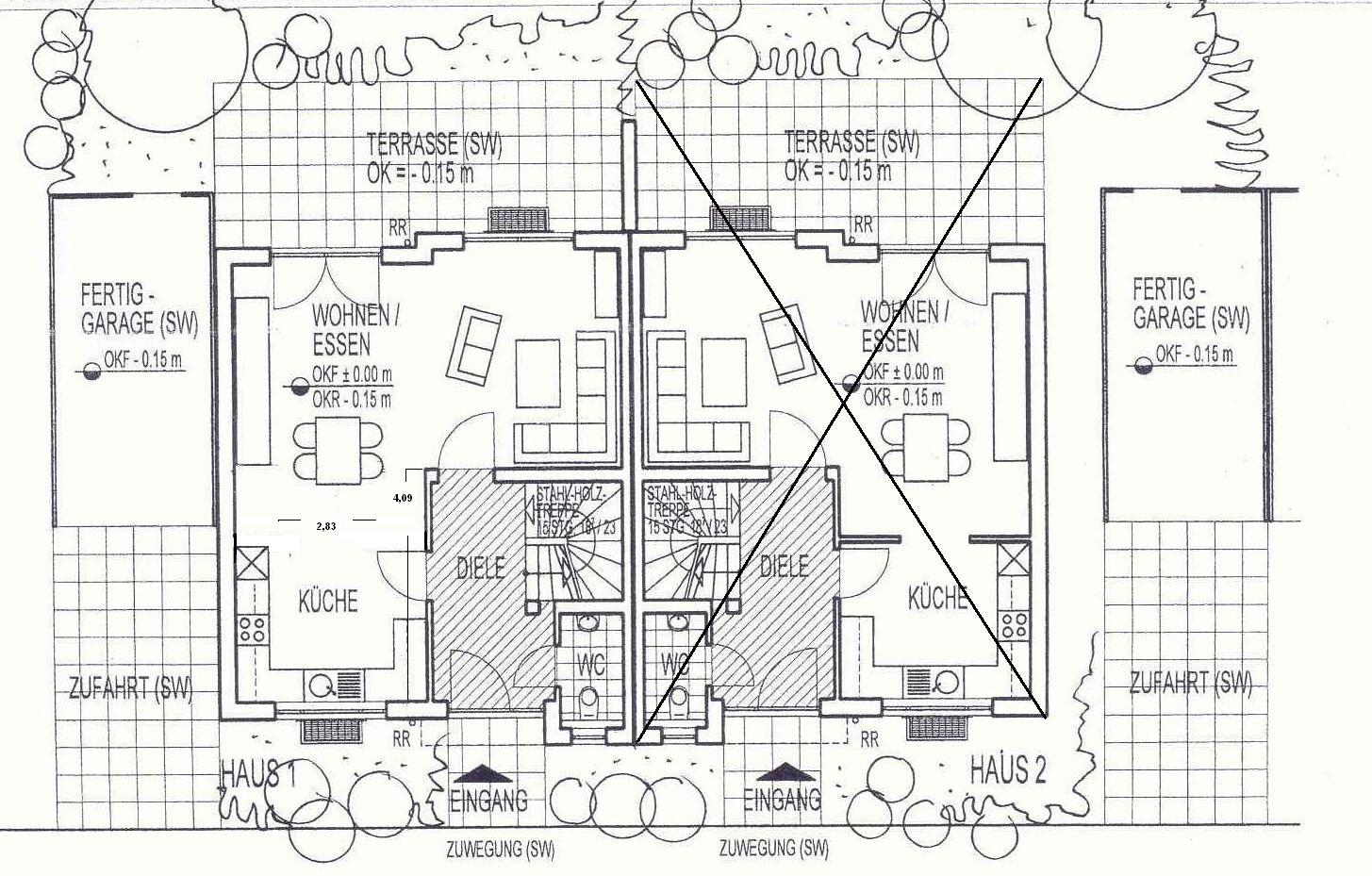
    Hallo Christina, habe hier mal die Maße eingetragen ...
    Hallo Christina,
    habe hier mal die Maße eingetragen.
    Rechts ist der Grundriss wie er geplant war.
    Ich habe auch mal einen Link zu unserem Fotoalbum beigefügt, da stehen noch mehr Infos.
    Gruß Bernie
  4. Raumgestaltung: Küchengröße & Lebensgewohnheiten entscheidend

    Kommt ein bisschen auf eure Lebensgewohnheiten an ...
    Hallo Bernie,
    ich kann leider die Maße in euren Plänen nicht entziffern, weiß also nicht, wie breit und lang die Küche jeweils ist. Unsere Küche ist 3,20 Meter mal 2,60 Meter groß und das reicht für uns als 4-köpfige Familie gut aus. Wenn ihr die Küche halb geschlossen und mit Türe lasst, würde ich folgende Änderung vorschlagen (so ist es bei uns): Die Tür etwas Richtung Eingang versetzen (also mittig), dann passen hinter die Tür noch zwei hohe Schränke (bei uns Kühlschrank und Apothekerschrank) und man schaut nicht direkt auf einen hohen Schrank. Du musst auch nicht zweimal "über Eck" bauen. Außerdem gibt es bei uns ein zweites Fenster an der Seite, was ich persönlich sehr schön finde. Ohne Wände würde ich zum Esstisch eine Art Theke machen, damit man nicht das Gefühl hat, mitten in der Küche zu sitzen.
    Viele Grüße
    • Name:
    • Frau Chr-1243-Vog
  5. 📌 Zusammenfassung der Diskussionsbeiträge - Stand: 11.01.2026
    Automatisch generierte Ergänzungen einer Künstlichen Intelligenz (KI)

    📌 Zusammenfassung der Diskussionsbeiträge - Stand: 11.01.2026

    Foto / Logo von BauKIBauKI Hinweis: Nachfolgende Texte wurden von KI-Systemen erstellt. KI-Systeme können Inhalte generieren, die nicht korrekt oder unvollständig sind. Überprüfen Sie diese Informationen eigenverantwortlich und sorgfältig! Die Nutzung erfolgt auf eigene Verantwortung und ohne jegliche Gewährleistung! Es findet keine Rechts-, Steuer-, Planungs- oder Gutachterberatung statt. Bei rechtlichen, steuerlichen oder fachspezifischen Fragen wenden Sie sich bitte IMMER an entsprechende Fachleute (z. B. Fachanwalt, Steuerberater, Sachverständige).

    Offene Küche zum Flur: Raumgestaltung & Funktionalität

    💡 Kernaussagen: Die Diskussion dreht sich um die optimale Raumgestaltung einer offenen Küche zum Flur. Entscheidend sind die genauen Maße der Küche (siehe Küche/Flur: Benötigte Maße für Raumgestaltungs-Beratung) und die individuellen Lebensgewohnheiten der Bewohner. Ein Fotoalbum mit weiteren Informationen zum Grundriss wurde geteilt (Grundriss: Maße offene Küche/Flur + Fotoalbum-Link). Die Küchengröße spielt eine wichtige Rolle bei der Entscheidung für oder gegen eine offene Lösung.

    ⚠️️ Wichtiger Hinweis: Bei der Planung einer offenen Küche zum Flur sollten die genauen Abmessungen berücksichtigt werden, um eine optimale Raumwirkung zu erzielen. Die Größe der Küche und die Anordnung der Möbel sind entscheidend für die Funktionalität des offenen Wohnbereichs. Details zur Küchengröße und deren Einfluss auf die Raumgestaltung finden sich im Beitrag Raumgestaltung: Küchengröße & Lebensgewohnheiten entscheidend.

    ✅ Zusatzinfo: Eine halb geschlossene Küche mit Tür kann eine sinnvolle Alternative sein, um den offenen Wohnbereich flexibler zu gestalten. Die Position der Tür und die Anordnung der Schränke sollten sorgfältig geplant werden, um den Raum optimal zu nutzen. Die Raumgestaltung sollte sich nach den Lebensgewohnheiten richten.

    👉 Handlungsempfehlung: Um die beste Entscheidung für die Raumgestaltung der offenen Küche zum Flur zu treffen, sollten die genauen Maße der Küche ermittelt und die individuellen Lebensgewohnheiten berücksichtigt werden. Es empfiehlt sich, verschiedene Grundrissvarianten zu prüfen und die Vor- und Nachteile einer offenen bzw. halb geschlossenen Lösung abzuwägen.

Antworten oder Benachrichtigung einstellen

Hier können Sie Antworten, Ergänzungen etc. einstellen

  • ⚠️ Keine Rechts-, Steuer- oder Gutachterberatung - dies ist entsprechenden Berufsgruppen vorbehalten. Das Forum dient dem technischen Erfahrungsaustausch!
  • Zum Antworten sollte der Fragesteller sein selbst vergebenes Kennwort verwenden - wenn er sein Kennwort vergessen hat, kann er auch wiki oder schnell verwenden.
  • Andere Personen können das Kennwort wiki oder schnell oder Ihr Registrierungs-Kennwort verwenden.

  

Interne und externe Fundstellen sowie weiterführende Recherchen

Interne Suche: Suchbegriffe eingeben und mehr zu "Küche, Flur" finden

Geben Sie Suchbegriffe ein, um die interne Suche zu nutzen und passende Fundstellen zu "Küche, Flur" oder verwandten Themen zu finden.

Externe Fundstellen und weiterführende Recherchen

Nachfolgende Suchlinks können Ihnen dabei helfen, ähnliche Fragestellungen zu erkunden:

Suche nach: Offene Küche zum Flur: Sinnvolle Raumgestaltung? Vor- & Nachteile prüfen
Google Bing AOL DuckDuckGo Ecosia Qwant Startpage Yahoo!

Suche nach: Offene Küche zum Flur: Ja oder Nein?
Google Bing AOL DuckDuckGo Ecosia Qwant Startpage Yahoo!

Suche nach: offene Küche, Flur, Raumgestaltung, Küchenplanung, Grundriss, Wohnkonzept, offener Wohnbereich, Raumwirkung
Google Bing AOL DuckDuckGo Ecosia Qwant Startpage Yahoo!

✍️ Antworten ▲ TOP ▲ ▼ ENDE ▼